在线咨询
在线沟通,请点我
在线咨询
咨询热线:
13601085171
15313907378
网站首页
公司简介
产品展示
成功案例
新闻动态
在线留言
联系我们
销售服务热线:
13601085171/
15313907378
网站首页
关于我们
公司简介
产品展示
燃气灶具系列
西餐设备系列
制冷保鲜设备系列
工作台、水槽设备系列
调理设备、保温、售饭系列
餐车、洗碗机设备系列
烤箱、电蒸柜、消毒柜系列
排烟罩、不锈钢货架系列
机械设备
案例展示
实体全景
CAD工程图纸
新闻中心
公司新闻
行业新闻
在线留言
联系我们
案例展示
case
案例分类
classification
实体全景
CAD工程图纸
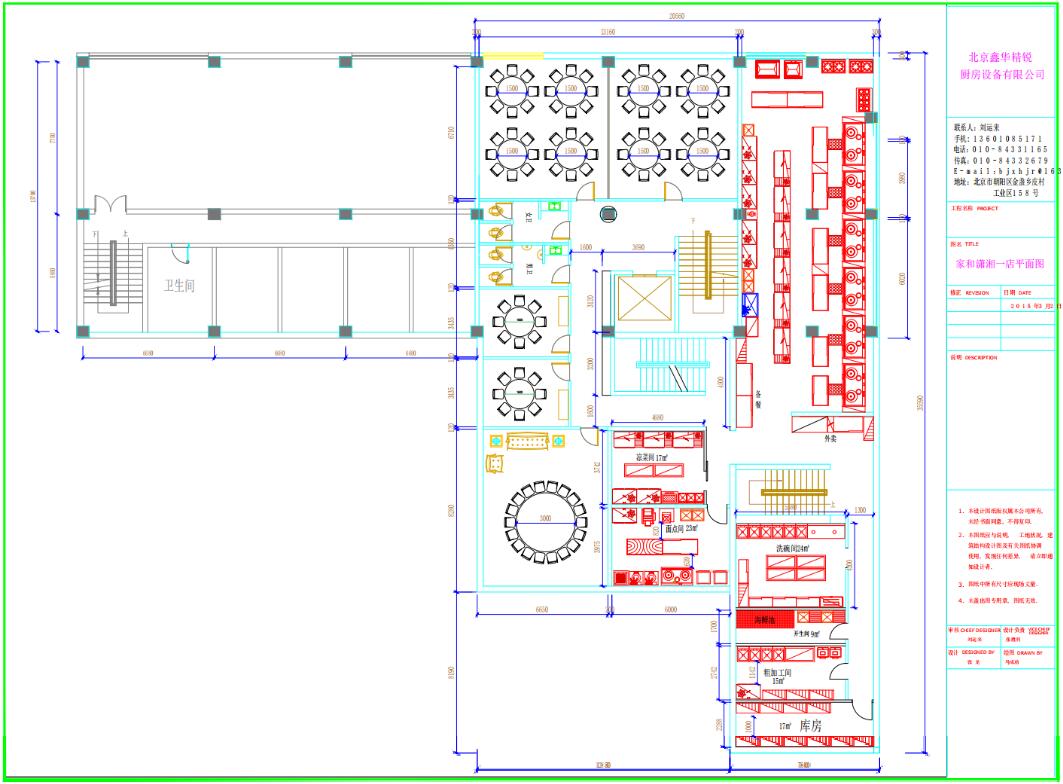
家和潇湘一店平面
Copyright © 2018 北京鑫华精锐厨房设备有限公司 ALL Rights Reserved. 京ICP备16005424号-1
电话
QQ
留言